3151 Asbury Drive Upper Arlington, Ohio
This exceptional Modern Tudor style residence is currently under construction and designed to deliver timeless architecture with modern multi-generational functionality. Thoughtfully planned for today’s lifestyle, this home blends classic craftsmanship with contemporary comfort in one of Upper Arlington’s most desirable neighborhoods.
Designed with both form and function in mind, this home delivers refined craftsmanship, thoughtful flow, long-term livability, and handicap accessibility throughout the first floor—without sacrificing style.
Estimated Completion: Late Spring 2026
Status: Spec Home: Currently in the rough phase
Not actual property: pre-construction renderings
Not actual property: pre-construction renderings
Property Highlights:
Approx. 5,000 sq ft of finished living space
6 Bedrooms | 4.5 Bathrooms
First-floor primary suite wing with vaulted ceilings and private fireplace
Secondary primary suite on the second floor – ideal for guests or multi-generational living
Grand two-story foyer with a dramatic see-through fireplace
Private home office + bonus family room.
Finished 1,800 sq ft lower level with kitchenette and private wine cellar and home gym.
Chef’s kitchen with concealed prep/dirty kitchen
Pella Reserve wood windows throughout
3-car garage with 11–12 ft ceilings (ideal for lift or specialty storage)
Fully accessible first-floor layout
.29 acres
Coming Spring 2026
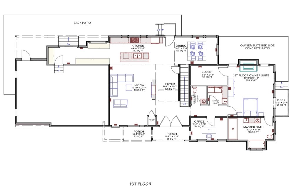
Original 1st Floor Plan: The first-floor plan has been modified to include a larger owner’s suite, relocation of the half bath, and additional storage closets.
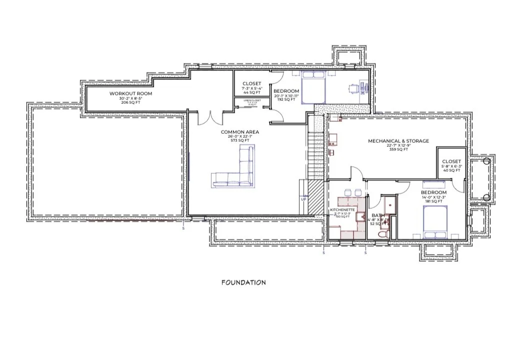
Original Foundation Plan: The layout has been modified to include an added wine cellar, an enlarged workout room, and relocated bedroom closets.
Original 2nd Floor Plan: Additional laundry and linen built-ins have been added.
For all sale inquires or details reach out to the listing agent:
Simone Sanchez
Douglas and Associates Realty
614-448-7184
